
- Bhegadewadi, Mulshi
Community crafted,
petal by petal
-
Possession - 31/10/2029
-
RERA Registered - Yes (PR1260002501272)
-
Home Loans - Available
-
Amenities - Landscaped gardens parking solar provisions security
-
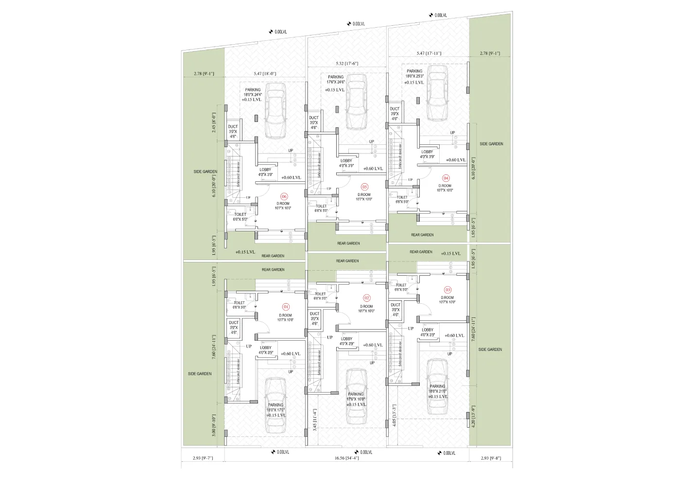
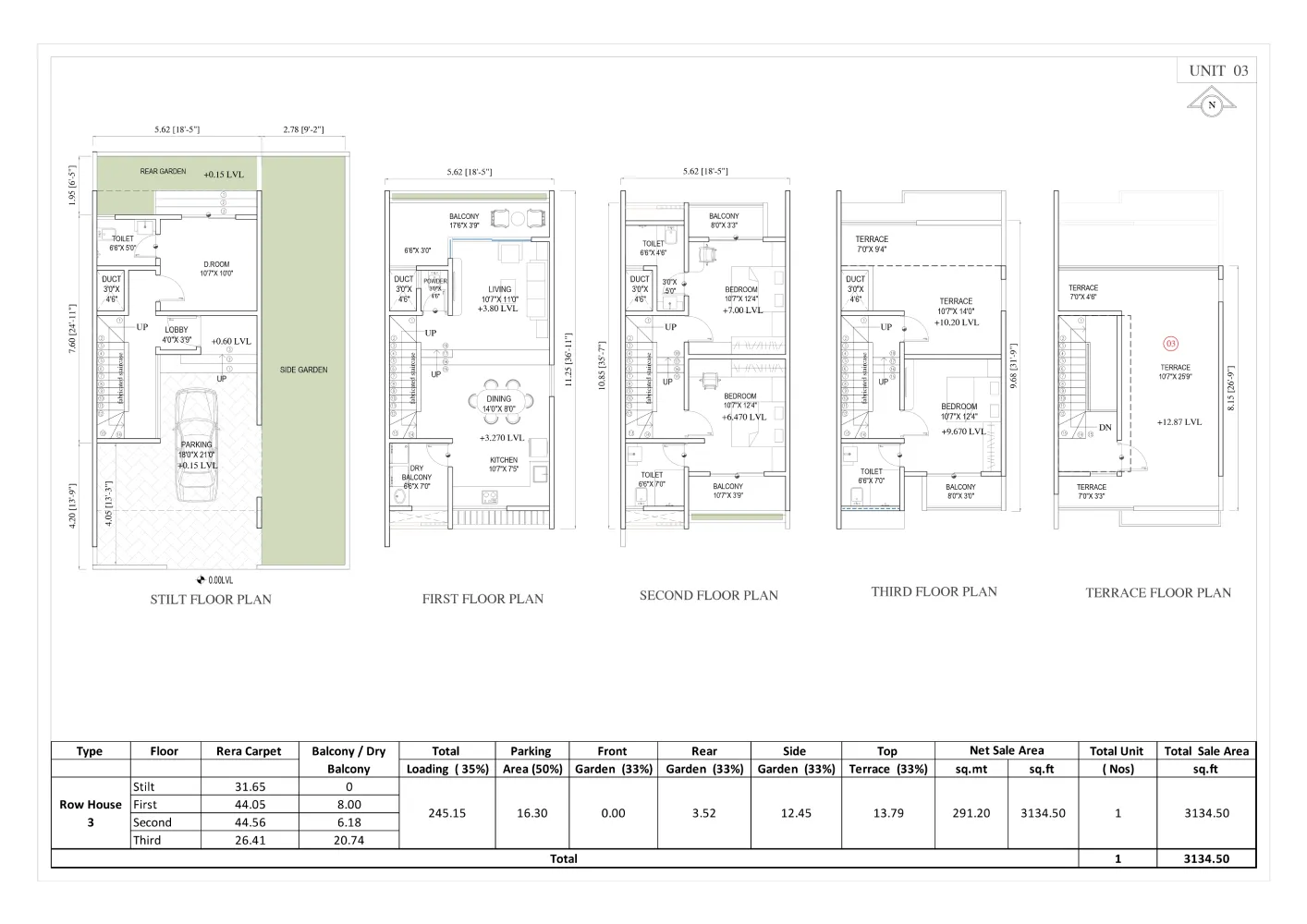
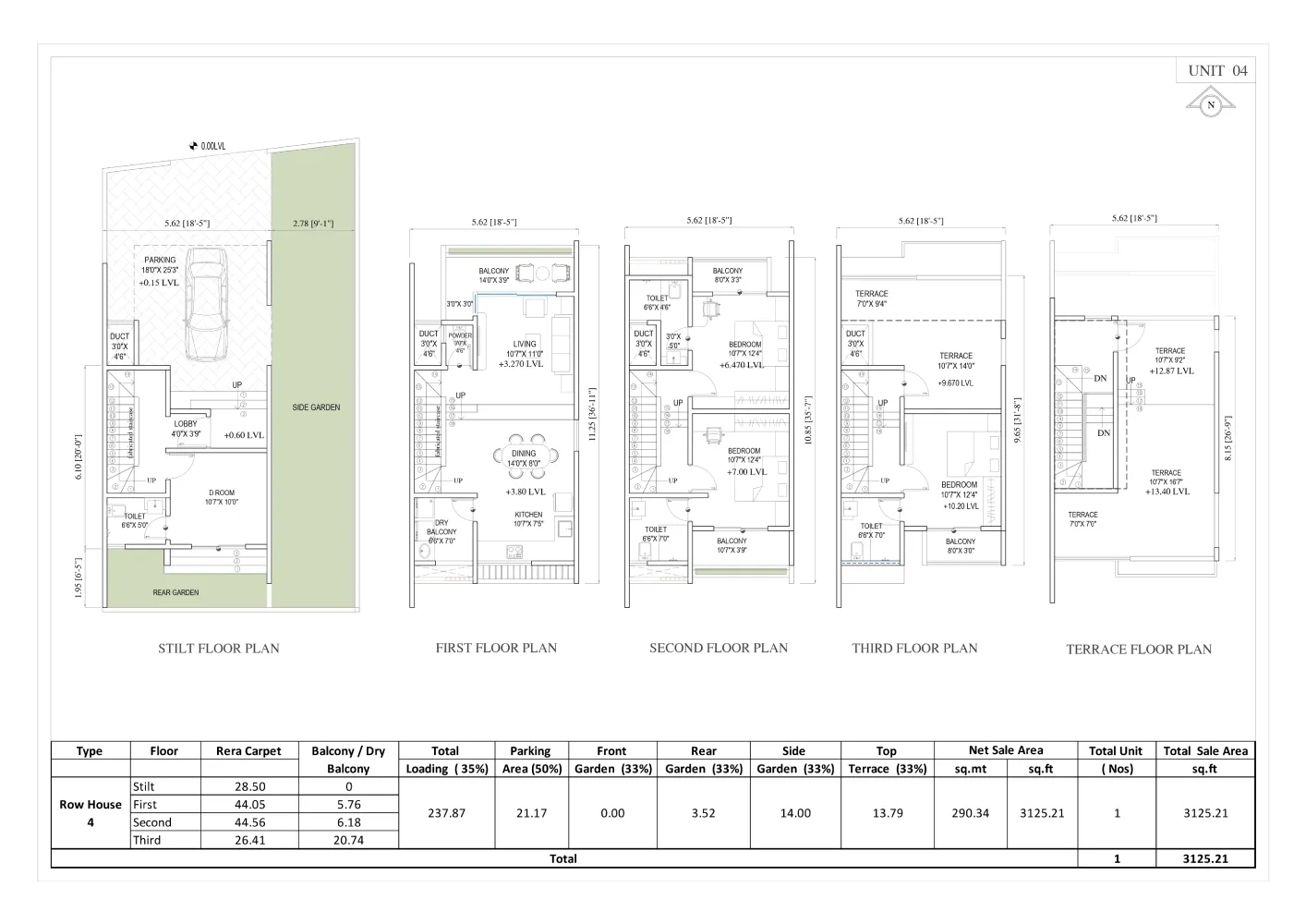
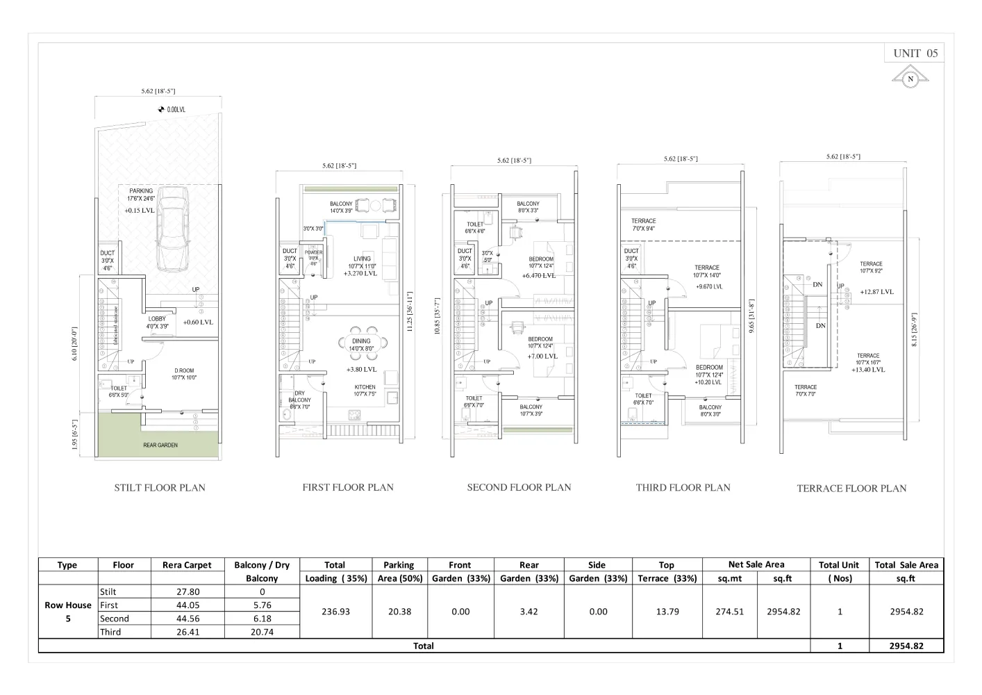
Units - 6 exclusive G+2 row houses

- Bhegadewadi, Mulshi
Community crafted,
petal by petal
-
Possession - Sep 2028
-
Number of Tower - 9
-
Lifestyle amenities - 40+
-
Nearly 1 acre of rock garden
-
Land parcel -17 Acres
-
Total Number of Units - 1275
-
Clubhouse - 20,000 sq. ft.
-
Sustainability at its essence
-
Possession - 31/10/2029
-
RERA Registered - Yes (PR1260002501272)
-
Home Loans - Available
-
Amenities - Landscaped gardens parking solar provisions security
-
Units - 6 exclusive G+2 row houses
Our Story
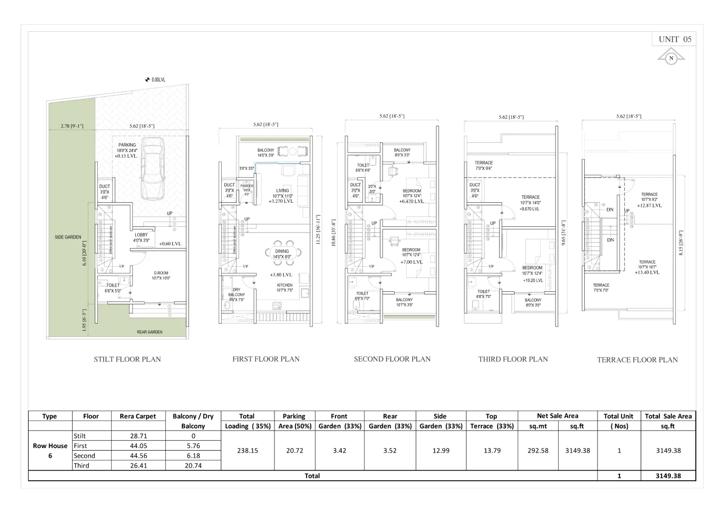
Cocoon Homes was born from a simple idea: to create thoughtfully designed living spaces that blend modern architecture with the warmth of community living. Our Bhegadewadi project features six elegant G+2 row houses, each crafted to provide comfort, functionality, and a sense of belonging. We believe homes should be more than structures—they should be cocoons of happiness, security, and growth.
We promise quality, transparency, and trust — delivering homes that are not just structures, but cocoons of happiness and growth.
Vision
To redefine urban living by offering sustainable, stylish, and community-focused homes that inspire a better quality of life.
Mission
To redefine urban living by offering sustainable, stylish, and community-focused homes that
inspire a better quality of life.
Core Values
- Integrity: Transparent processes and honest commitments.
- Innovation: Smart designs that adapt to evolving lifestyles.
- Sustainability: Environmentally conscious construction and living.
- Community: Building not just houses, but lasting relationships.
- Excellence: Striving for superior quality in every detail.
Why Us
New Era of Modern Living
01
Thoughtfully designed homes that combine modern architecture with community living
02
Efficient space planning focused on comfort functionality and everyday usability
03
Transparent processes with a strong customer-first approach
Project Overview
A Balanced Way of Living
Cocoon Homes presents an exclusive row house community in Bhegadewadi, featuring 6 G+2 homes designed for comfort, elegance, and functionality.
Project Highlights
-
Limited edition row houses for exclusivity
-
Smart layouts maximizing space and natural light.
-
Modern façade with premium finishes.
-
Secure and serene neighborhood.
Amenities
-
Landscaped garden spaces
-
Dedicated parking
-
Rainwater harvesting
-
Solar provisions
-
24/7 security
Gallery
Everyday Moments Thoughtfully Built













Amenities

Grand Entrance Gate

Party Lawn

Jogging Track

Senior Citizen Area

Children's Play Area

Open GYM

Water & Electricity Provision

Plot Compound

Vastu Compliant

Path Way Street Light

Internal Concrete Road (12Mtr & 9Mtr)
Floor plans
Stunningly Crafted Homes
Location
Advantages
Connectivity
- Easy Connectivity From PCMC & PMC
- 15 Min From Megapolis Township /Hinjewadi Phase 3 110 Min From Pirangut
- 110 Min From Metro Station
- 110 Min From Hinjewadi Phase One (Wipro Circle)
- 115 Min From Wakad, Bavdhan
- 120 Min From Chandni Chowk
- 20 Min From Sus
Community Within Reach
- Finest Educational Institutions
- Zee Mount Litera School International
- Shri Vidya Bhavan High School And Junior College
- Pawar Public School
- Eurokids Pre-school
- Symbiosis Within 5 Mins Radius
Healthcare & Hospitals
- Ruby Hall Clinic
- Sanjeevani Hospital
- Mulshi Multi-speciality Hospital
- Aditya Birla Hospital







